Nekonečný příběh nymburského bazénu – sága pokračuje...

18. 04. 2019 12:29

Na nový krytý plavecký bazén si po včerejším zasedání zastupitelstva v Nymburce počkáme o mnoho let déle.

Přípravy různých variant projektů nového krytého plaveckého bazénu v Nymburce sahají až do minulého tisíciletí. Jen za poslední dekádu se záměr měnil několikrát. Po volbách v roce 2010 byl za starosty Miloše Petery dokončen návrh a územní rozhodnutí rekonstrukce a dostavby stávajícího bazénu ve Zbožské ulici. Skončil ovšem, jako všechny projekty před tím, v šuplíku. V dubnu 2015 již za starosty Tomáše Macha byl schválen naopak návrat k záměru výstavby nového bazénu v lokalitě u zimního stadionu.
 
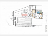
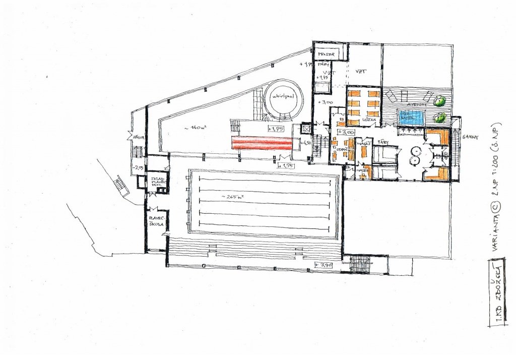
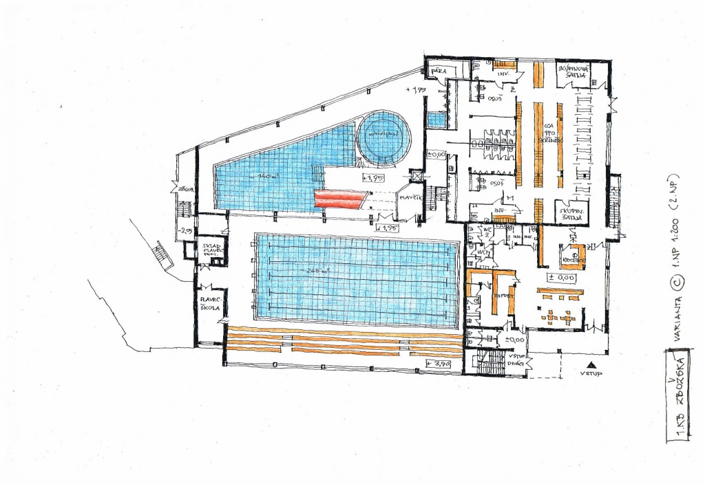
To se ovšem rok na to změnilo a na schůzi Zastupitelstva města Nymburk dne 13. dubna 2016, tedy přesně PŘED TŘEMI LETY, bylo tehdy stále úřadujícím starostou Machem naopak prosazeno a přijato usnesení, ve kterém byl opět schválen záměr rekonstrukce stávajícího krytého bazénu v ulici Zbožská. Přilohou k tomuto projednávanému bodu byly nově zpracované ideové skici od Studia BFB. Několik let starý projekt rekonstrukce tedy v onom pověstném šuplíku zůstal. Schváleno 12 hlasy z 21 zastupitelů, vypsáno výběrové řízení na přípravu všech stupňů projektové dokumentace, vysoutěžen zpracovatel, v srpnu 2016 starosta Tomáš Mach podepsal smlouvu a začalo se.
 
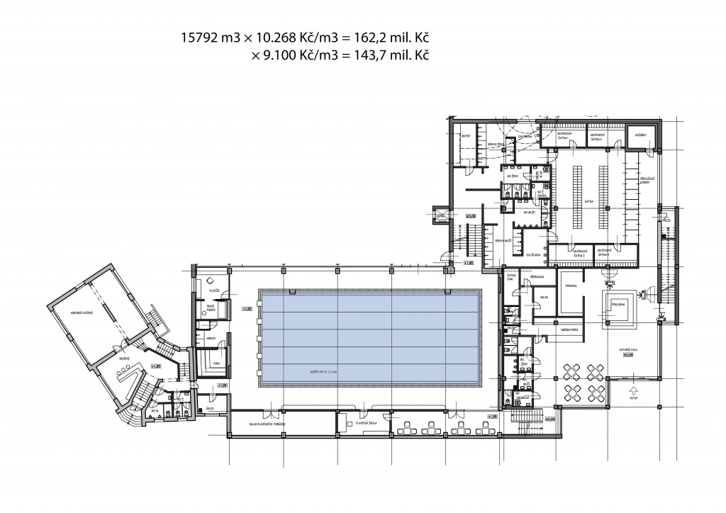
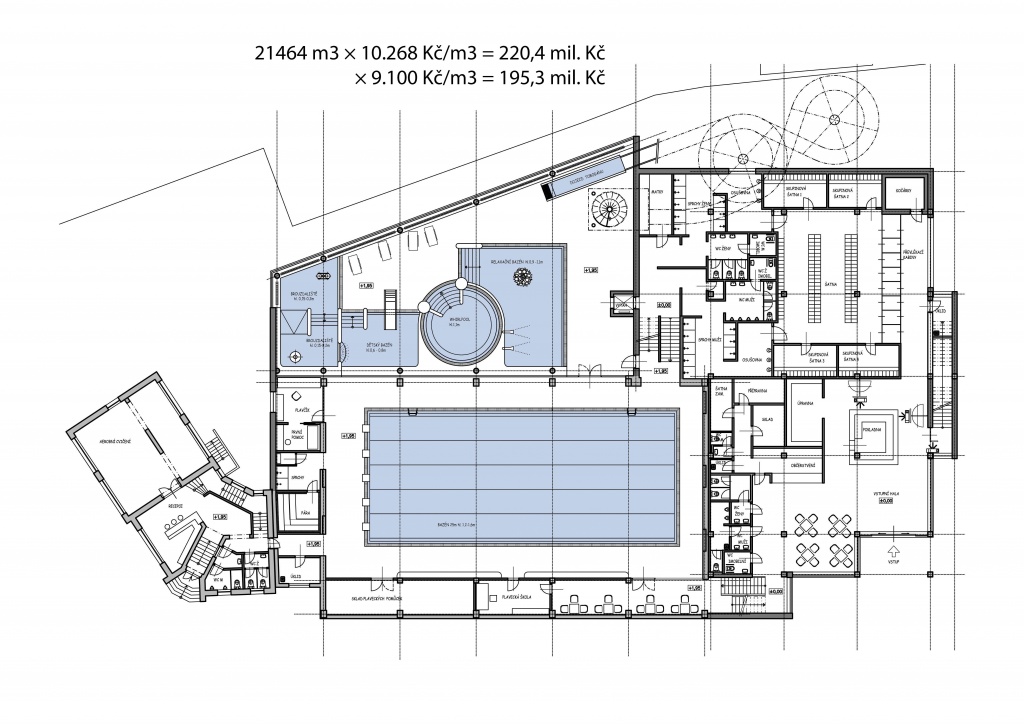
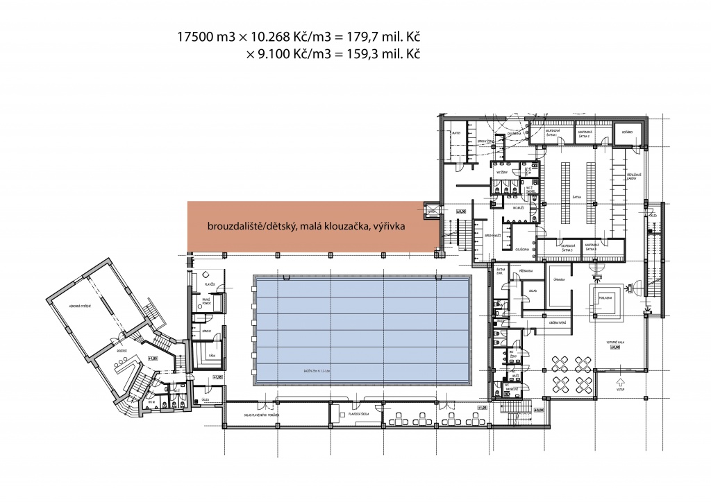
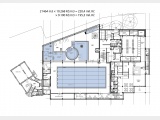
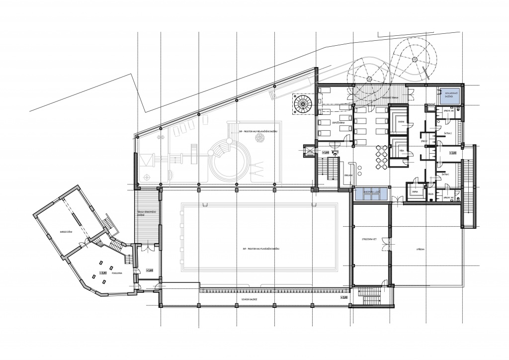
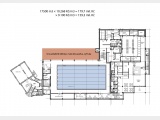
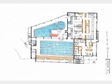
Přípravu projektu provázela řada nesnází, zejména problémů se zpracovatelem. Přesto se podařilo projekt v roce 2018 dokončit. Nyní je tedy hotov, vydáno platné stavební povolení, naprosto odpovídá schválenému usnesení z dubna 2016. Neexistuje žádná změna, která by ho při jeho přípravě prodražila. Ti, kteří to tvrdí, to ničím konkrétním nikdy nepodložili. Návrh i projekt je několika na sobě nezávislými odborníky hodnocen jako velmi zdařilý a vhodný k realizaci. Po uplatnění úprav doporučených nezávislou odbornou oponenturou lze rozpočet investičních nákladů stavby bazénu v navrženém rozsahu dostat pod 200 mil. Kč (cca 9100 Kč za m3 obestavěného prostoru). Pokud by byla přístavba zredukována na minimum, pouze s brouzdalištěm pro děti a jednou vířivkou, rozpočet by mohl klesnout pod 160 mil. Kč. V přibližné výši těchto nákladů, záleželo by na výsledku výběrového řízení na zhotovitele, by tedy byla v Nymburce kvalitní možnost plavat a navštěvovat krásný příjemný wellness soudobé úrovně.
 
17. dubna 2019 ovšem 11 zastupitelů z 21, opět v čele s Tomášem Machem, rozhodlo, že to bude zase jinak. Zavřený bazén se pokusí co nejrychleji opět zprovoznit, předpotopní podmínky, ve kterých se jeho provoz odehrává, akceptovat, za kvalitní saunou muset nadále jezdit desítky kilometrů daleko a oprýskaná fasáda s odpornou směsí reklam bude dalších mnoho let hyzdit hlavní průjezd naším městem.
 
Co k tomuto rozhodnutí a u několika zastupitelů doslovnému názorovému obratu mohlo vést? Co se vlastně za ty tři roky změnilo, že ti, kteří tento projekt před třemi lety zahájili jej dnes smetli?
 
1. Umístění stavby v rámci města? _Obě varianty mají v tomto smyslu víceméně rovnocenný výčet výhod a nevýhod. Všechny podmínky jsou dodnes naprosto totožné.
2. Doprava a parkování? _Všechny souvislosti beze změn.
3. Provozní náklady stavby? _Nevyhnutelné nutnosti dotovat provoz bazénu si byli vždy všichni vědomi. Předpoklad výše roční dotace se nezměnil a týkal se vždy stejně obou variant.
4. Investiční náklady? _Někteří představitelé se údajně domnívali, že rekonstrukce starého bude výrazně levnější, než novostavba. Konkrétní vyčíslení této domněnky ovšem není obsahem žádného oficiálního dokumentu. To, že generální rekonstrukce stavby je srovnatelně drahá jako nový dům si ověřil každý, kdo zevrubně opravoval třeba jen starý rodinný domek. Nehledě na to, že zachování naprosté většiny starých konstrukcí u současného bazénu se ukázalo jako neekonomické a tak by byl nový bazén ve Zbožské stejně v podstatě novostavbou. Prostě by se jednalo o nový bazén na místě stávajícího.
5. Bazén nám bude po dobu rekonstrukce chybět. To jsme přeci všichni věděli. Údajně se ale ukázalo, že nenadálý problém se zavřeným bazénem je nepřekonatelný. Takže budiž, to je tedy to jediné nové zjištění, které jsme před třemi lety prý nemohli tušit.
 
Závěr: Záměr, ke kterému se město včera těšnou většinou hlasů zastupitelů po několikáté vrací, není sám o sobě špatný. Špatné je, že jsme ztratili 3 roky, investovali včetně DPH přes 3 milony korun a věnovali obrovské množství práce mnoha lidí jen proto, abychom zjistili, jak by nový bazén na Zbožské mohl detailně vypadat a kolik by ve skutečnosti stál.
 
Schválené rozhodnutí zastupitelstva nezbývá, než respektovat a být v možných mezích nápomocen, aby se znovu neopakovaly stejné chyby, výsledek práce byl co nejlepší a nebyl nakonec opět zmařen. Optimálně postupovat stejně jako v případě nové lávky pro pěší, tedy dobře a odborně připravenou soutěží o návrh.
 
I tak celá příprava všech stupňů projektové dokumentace a zajištění povolení jednoduchá nebude. Obavy jsou na místě zejména z hlediska:
1. Celkových investičních nákladů – u zimního stadionu bude třeba rozsáhlých úprav okolí stavby, příjezdu atd.
2. Investic do infrastruktury – všechny přípojky, budou v místě vůbec dostupné kapacity? Jistě bude třeba zrealizovat novou trafostanici apod.
3. Dopravních problémů – v místě odbočení z Tyršovy ulice bude výrazně zvýšen provoz, nebude třeba v té souvislosti překážkou nedaleký železniční přejezd?
4. Ochranného pásma železniční trati, vodního toku, stoletá voda atd.
5. Časové náročnosti – jenom vyhodnocení vlivů na životní prostředí (EIA) může přípravu projektu nepředstavitelně protáhnout.
 
V tomto volebním období, tedy do roku 2022, se do země v souvislosti s bazénem zjevně opět nekopne. A rozhodlo se o tom v okamžiku, kdy bylo vše připraveno, aby byla stavba k tomuto účelu zahájena a do konce volebního období zprovozněna.

Fotogalerie