Rekonstrukce a přístavba krytého bazénu

23. 03. 2017 17:20

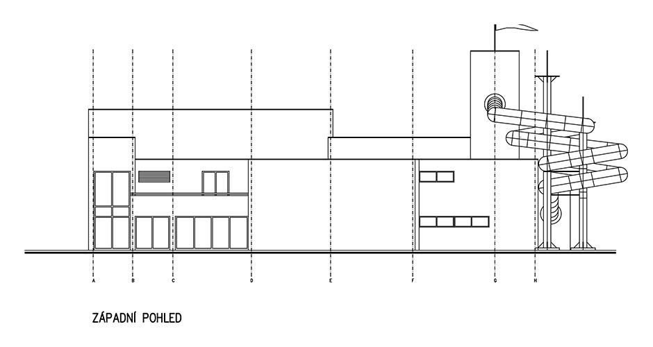
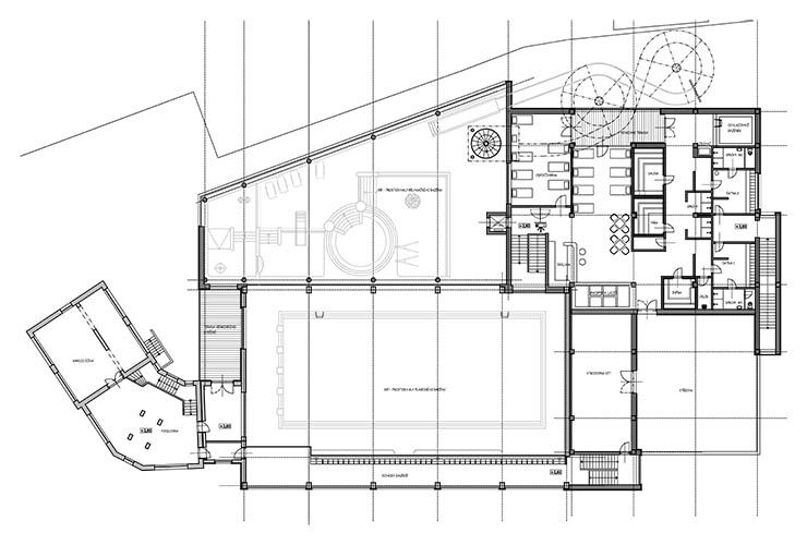
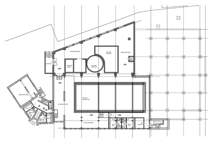
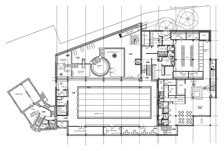
V únoru 2017 byla dopracována a předložena finální podoba návrhu rekonstrukce a přístavby veřejného plaveckého bazénu v Nymburce.

Autoři návrhu, architekti Antonín Buchta a Miloš Mlejnek z BFB Studia, kteří se na sportovní stavby tohoto typu specializují a mají za sebou řadu úspěšných realizací, připravovali tuto studii v úzké spolupráci s vedením města, invenčním způsobem reagovali na všechny požadavky a přicházeli s vlastními náměty na způsob využití prostor a organizaci provozního řešení.

Návrh byl jednohlasně přijat radou města, zveřejněn a dosud k němu nebyly nikým vzneseny jakékoli výhrady. Jsme přesvědčeni, že jej právem můžeme považovat za velice efektivní a kvalitní řešení. Při tomto rozsahu a úrovni nabízených služeb se zjevně jedná i o šetrné řešení vzhledem k výši investice, která jeho realizací vznikne a dle předběžných kalkulací přesáhne 100 miliónů korun.

Projekt tedy nyní pokračuje přípravou dokumentace pro územní rozhodnutí.

(Pozn., Jan Ritter, 3. 10. 2018: Tento článek je z doby, kdy doslova lítaly vzduchem různé nepodložené cifry za investici do bazénu, ale neexistovala žádná, která by byla podložena relevantním výpočtem. K 200 mil. Kč nesahaly tehdy odhady ani těch největších pesimistů, ale přes 150 mil. Kč ano. Já jsem se osobně na základě neoficiálních a velmi hrubých propočtů tehdy domníval, že se do těch 150 mil. Kč vejdeme, ale nikdy bych se to s takto chatrnými daty neodvážil veřejně tvrdit. Každopádně v kontextu tehdejší veřejné debaty jsem považoval za žádoucí se vyjádřit, že cenu 100 tis. Kč přesáhne. Podložený rozpočet obdrželo město ale až v dubnu 2018.)

Fotogalerie